Описание котла
Водогрейный котел КВр-0,5 – это агрегат, использующийся для отопления и горячего водоснабжения жилых, административных и производственных зданий. В котле мощностью 500 кВт (0,5 МВт) в качестве топлива используются древесные отходы: кора, щепа, опил, пеллеты. Максимальная температура нагрева жидкости в котлах на древесных отходах достигает 115 °С. Устанавливается в котельную 500 кВт и котельную 1 МВт.
Конструкция котла КВр состоит из сварной трубной системы, так называемого блока котла и колосниковой топки. Окрашенный металлический корпус защищает котел от коррозии и механических повреждений. Чтобы сократить теплопотери, газоплотные и негазоплотные части котельного блока обшиты теплоизоляционным материалом: плитами ПТЭ и войлоком.
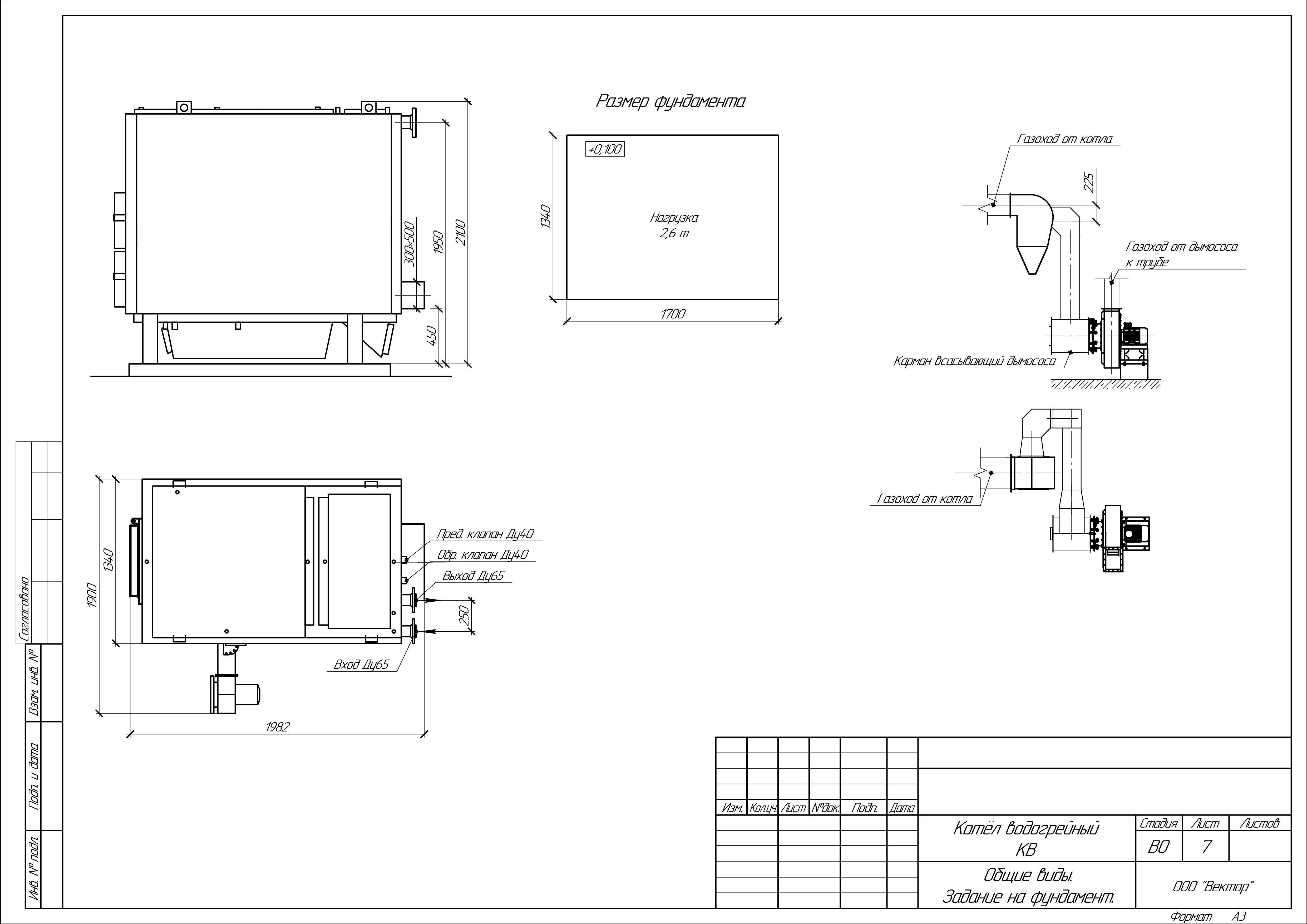
Агрегат компактен, безопасен и прост в эксплуатации. Для установки котла КВр-0,5 с габаритными размерами по длине, ширине и высоте: 2,05х1,35х2,1 м требуется подготовленное место. Отапливаемая площадь достигает – 5000 м². Твердотопливный котел с ручной системой топливоподачи и шлакоудаления легко обслуживается одним оператором – кочегаром: расход древесных отходов небольшой – 135 кг/ч. Для удобства загрузки топлива котел с колосниками оснащен шнековой подачей и ворошителем. Не имеет высоких требований к качеству нагреваемой жидкости и работает без водоподготовки.
При должном соблюдении правил использования, а это своевременная очистка топки от шлака, можно забыть о поломках и снижении производительности отопительного котла КВр, что дает срок службы не менее 10 лет.
Более подробную информацию Вы можете получить у наших специалистов. Чтобы купить отопительный водогрейный котел КВр-0,5 на коре, щепе, опиле, пеллетах и других древесных отходах с колосниками мощностью 500 кВт (0,5 МВт), достаточно позвонить нам либо оставить заявку и мы обязательно с Вами свяжемся.

