Устройство и принцип работы котла КВм-1.4 на угле с топкой ТЧЗМ
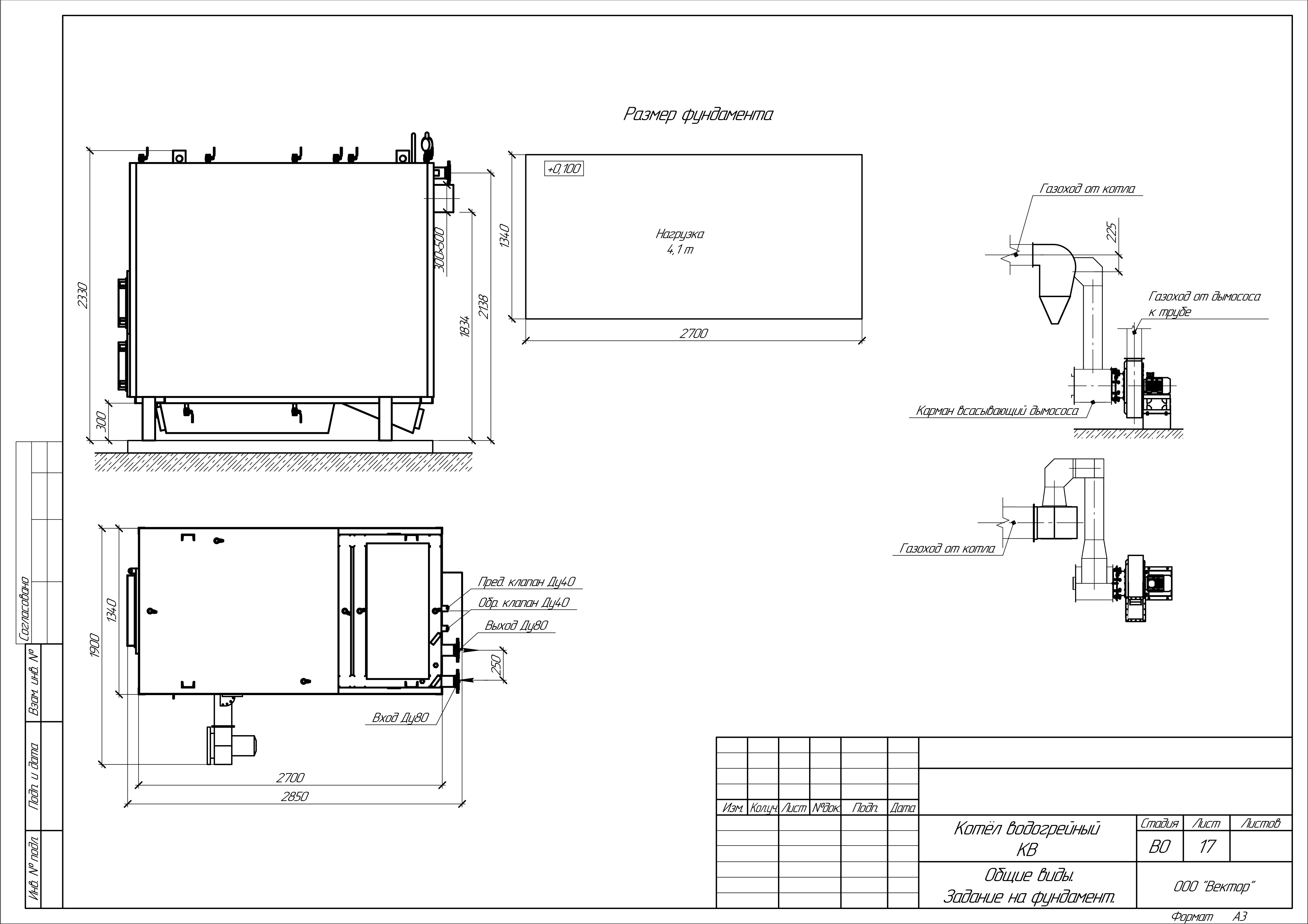
Комплект водогрейного котла КВм-1.4 и механической топки ТЧЗМ собирается в единый корпус по вертикальной схеме — внизу располагается угольная топка, над ней устанавливается блок котла. Корпус изготавливается из металлического жаростойкого листа и обшивается теплоизоляцией.
Совмещение механического и пневматического принципов забрасывания топлива обеспечивают непрерывную подачу новых порций топлива на горящий слой. Топка ТЧЛЗ оснащена чешуйчатым колосниковым полотном, состоящим из ведущих цепей. Чешуйчатая решетка с обратным движением способствует нижнему сжиганию топлива и стабильному горению.
Условное обозначение
Котел КВм-1.4 на угле с топкой ТЧЗМ, где:
- К — котел;
- В — водогрейный;
- м — механическая топка;
- 1.4 — мощность топки.
- Т — топка;
- Ч — чешуйчатое полотно;
- З — механический забрасыватель;
- М — механическая.
Монтаж котла КВм-1.4 на угле с топкой ТЧЗМ
Котел водогрейный КВм-1.4 поставляется в комплекте с механической топкой ТЧЗМ. В готовом виде конструкция имеет вертикальное строение — топка ТЧЗМ устанавливается под водогрейный котел КВм, и собирается в общий металлический корпус с теплоизоляцией. Устройство доставляется в максимальной заводской сборке, готовое к монтажу и пуско-наладочным работам. Установка монтируется на подготовленное выравненное основание и надежно фиксируется при помощи анкерных креплений.
Монтаж и пуско-наладочные работы котельного оборудования производятся специалистами с соблюдением СНиП 11-35-76 «Котельные установки» и «Правил устройства и безопасной эксплуатации паровых и водогрейных котлов».

